Edit Content

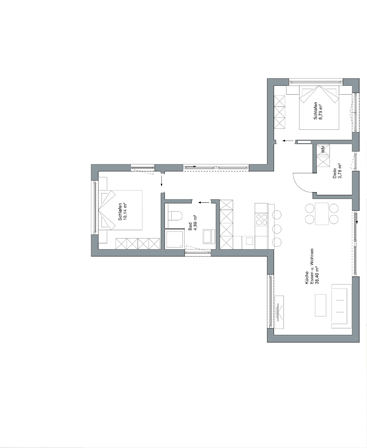
T/L Cube

T Cube

Variante 1

7,8m x 4,2m  +  12m x 4,2m ┃ 66 m²

Diese T-Cube-Variante bietet einen weitläufigen Wohn-, Ess- und Küchenbereich (38,40 m²) mit großen Fensterflächen, die für eine helle und offene Atmosphäre sorgen. Zwei Schlafzimmer (10,14 m² & 8,79 m²) sind an entgegengesetzten Seiten angeordnet, während eine kompakte Diele (3,78 m²) die Räume verbindet. Das Badezimmer (4,89 m²) ist platzsparend gestaltet und funktional integriert.

Im Vergleich zu Variante 2 bietet diese Version einen größeren Wohnbereich, jedoch eine kleinere Diele und keinen zusätzlichen Hauswirtschaftsraum.

Variante 2

12m x 4,2m  +  8m + 4,2m ┃ 65,42 m²

Diese Variante bietet einen kleineren Wohnbereich (28,57 m²), dafür aber gleich große Schlafzimmer (10,05 m² & 10,09 m²) und eine größere Diele (5,86 m²). Ein geräumigeres Bad (6,34 m²) und ein Hauswirtschaftsraum (2,40 m²) sorgen für mehr Komfort und Stauraum. Im Vergleich zur ersten Variante ist der Wohnbereich kompakter, dafür ist die Raumaufteilung funktionaler.

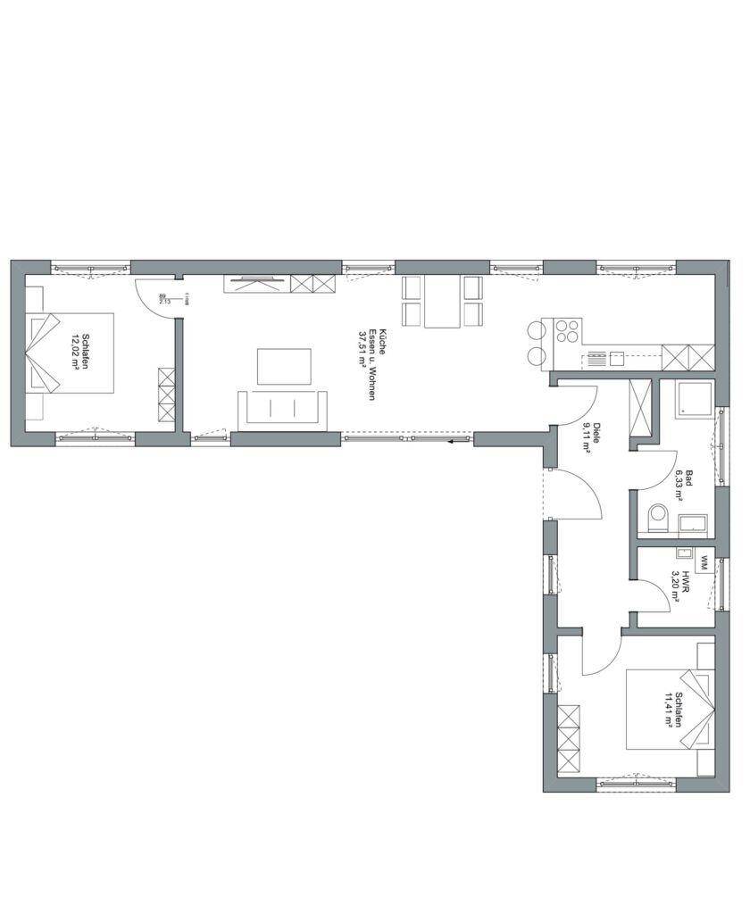
L Cube

Variante 1

12m x 4,2m  +  10m x 4,2m ┃ 73,23 m²

Diese L-Cube-Variante kombiniert einen offenen Wohn-, Ess- und Küchenbereich (37,51 m²) mit zwei Schlafzimmern (12,02 m² & 11,41 m²) und einem Bad (6,33 m²). Große Fenster sorgen für viel Tageslicht, während die T-Form eine geschützte Außenfläche schafft. Die durchdachte Raumaufteilung ermöglicht eine harmonische Verbindung von Gemeinschafts- und Rückzugsbereichen.Diese L-Cube-Variante kombiniert einen offenen Wohn-, Ess- und Küchenbereich (37,51 m²) mit zwei Schlafzimmern (12,02 m² & 11,41 m²) und einem Bad (6,33 m²).

Große Fenster sorgen für viel Tageslicht, während die T-Form eine geschützte Außenfläche schafft. Die durchdachte Raumaufteilung ermöglicht eine harmonische Verbindung von Gemeinschafts- und Rückzugsbereichen.

Variante 2

12m x 4,2m  +  12m x 4,2m ┃ 79,58 m²

Diese Variante des L-Cubes bietet neben dem offenen Wohn-, Ess- und Küchenbereich (37,51 m²) zwei Schlafzimmer (12,02 m² & 11,41 m²), ein Bad (6,33 m²) sowie einen Hauswirtschaftsraum (3,20 m²) für zusätzlichen Stauraum. Im Vergleich zur ersten Variante verfügt sie über eine größere Diele (9,11 m² statt 5,96 m²) für mehr Bewegungsfreiheit und eine optimierte Raumnutzung, bleibt aber in ihrer offenen Wohnstruktur und der geschützten Außenfläche unverändert.