Edit Content

Individueller Cube

Massgeschneiderte Wohnkonzepte ohne Grenzen

Die Gestaltungsmöglichkeiten individueller Cubes sind nahezu unbegrenzt und
können exakt an die Wünsche und Bedürfnisse der Bewohner angepasst werden. Von auBergewöhnlichen Architekturkonzepten bis hin zu massgeschneiderten Raumlösungen – jede Idee kann redlisiert werden.

Dank der modularen Bauweise lassen sich kreative und funktionale Wohnkonzepte umsetzen, die sich harmonisch in die Umgebung einfügen und höchsten Ansprüchen an Design und Komfort gerecht werden. Innovative Materialien, inteligente Raumlösungen und nachhaltige Bauweisen ermöglichen es, einzigartige Wohnräume zu schaffen, die sowohl ästhetisch als auch funktional Überzeugen.

Ob avantgardistische Entwürfe, besondere Raumaufteilungen oder technisch
anspruchsvolle Lösungen — mit individuell geplanten Cubes sind der Kreativitat keine Grenzen gesetzt.

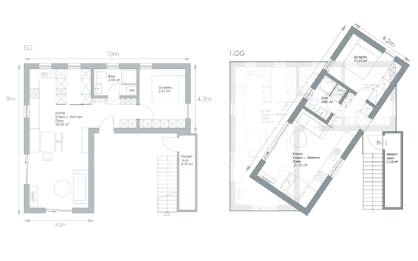
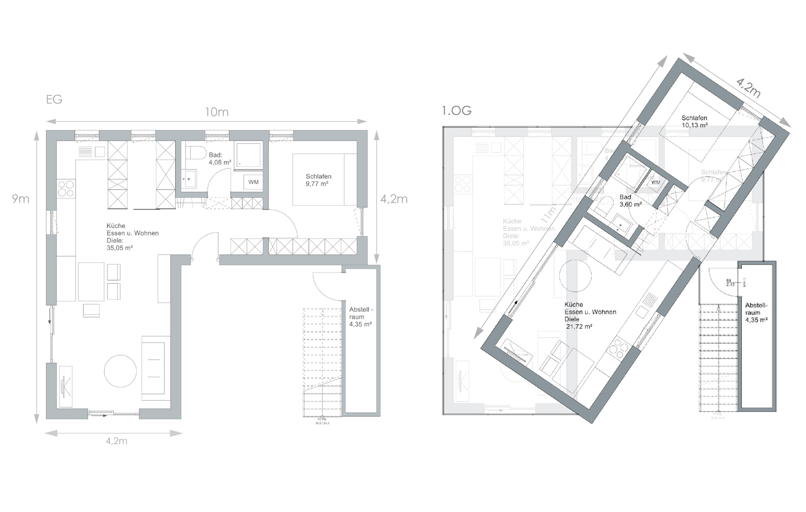
Möglicher Grundriss

Das Erdgeschoss ist als eigenständige Wohnung  konzipiert — ideal
für Singles oder Paare, die GroBzügigen Wohnraum schätzen. Ein
praktischer Stauraum unter der Treppe bietet Platz für Dinge, die
nicht täglich benötigt werden.

Das Obergeschoss wurde um ca. 40 Grad gedreht, was der
Architektur eine moderne und dynamische Optik verleiht. Es folgt der klassische 11-m-Cube-Grundriss, welcher sich für die Vermietung eignet. Die durch die Drehung entstehende AuBenfläche wird als Terrasse genutzt und kann mit einer Markise oder einer festen Überdachung ergänzt werden.

Dieses Konzept zeigt eine mögliche individuelle Cube-Lösung und stellt kein Standardmodell dar.

Eckdaten:
Quadratmeter: 88,70 m²
Materialien: Holz + grave HPL Platten