Edit Content

2 Stöckiger Cube

Variante 1

10m x 4,2m  +  10m x 4,2m ┃ 63,89 m²

Diese Variante bietet auf zwei Ebenen eine durchdachte Raumaufteilung. Im Erdgeschoss befinden sich ein offener Wohn-und Essbereich sowie ein abgetrennter Küchenbereich sowie ein Schlafzimmer (8,79 m²). Eine Treppe im Zentrum verbindet beide Etagen. Das Obergeschoss umfasst zwei weitere Schlafzimmer (8,79 m² und 10,94 m²), ein Badezimmer (5,60 m²) und eine Diele (6,01 m²) als Verteilerraum.

Variante 2

12m x 4,2m  +  12m x 4,2m ┃ 76,77 m²

Diese Variante bietet großzügigen Wohnraum auf zwei Etagen mit durchdachter Raumaufteilung. Im Erdgeschoss sorgt der offene Wohn-, Ess- und Küchenbereich (26,42 m²) für eine einladende Atmosphäre. Ergänzt wird die Etage durch ein Schlafzimmer (8,79 m²) und eine Diele mit Treppe. Das Obergeschoss umfasst ein weiteres Schlafzimmer, ein Kinderzimmer sowie eine Ankleide und ein Badezimmer. Eine zentrale Diele verbindet alle Räume.

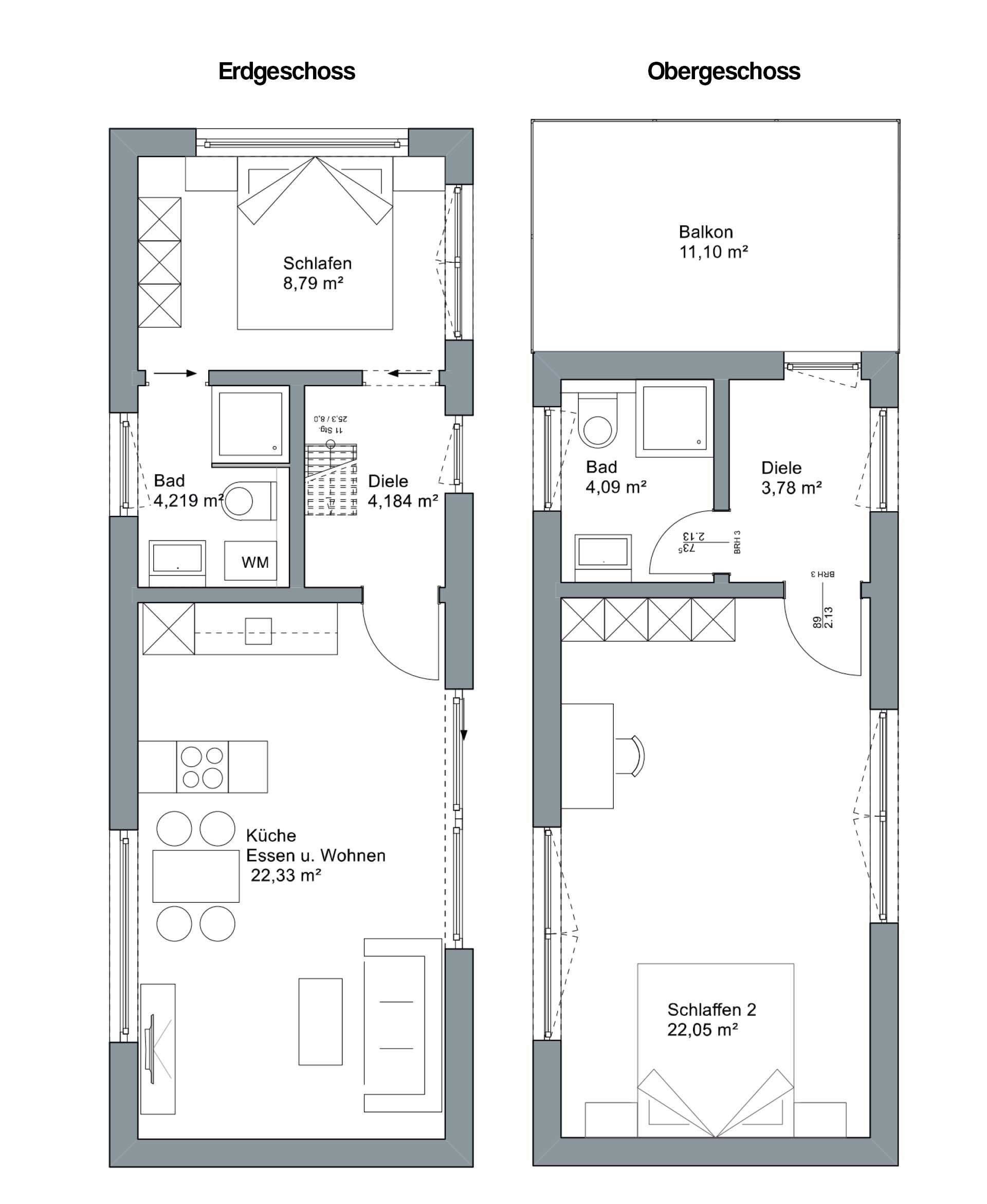
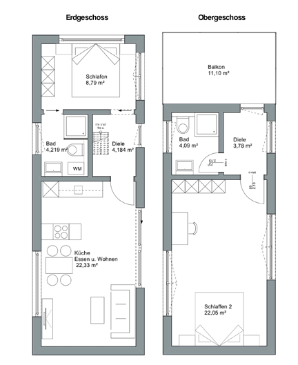
Variante 3

12m x 4,2m  +  9m x 4,2m ┃ 76,77 m²

Diese erweiterte Variante bietet mehr Wohnfläche als Variante 1 und einen integrierten Balkon für zusätzlichen Außenraum. Im Erdgeschoss befindet sich ein offener Wohn-, Ess- und Küchenbereich, ergänzt durch ein Schlafzimmer. Eine zentral platzierte Treppe im Eingangsbereich führt ins Obergeschoss. Das Obergeschoss umfasst ein Schlafzimmer, ein Badezimmer und eine Diele. Der Balkon erweitert den Wohnraum und bietet einen geschützten Außenbereich.