Edit Content

CUBE OHNE VORDACH

8m x 4,2m

Wohnfläche 25 qm² + Terrasse

Die Größe S (8 × 4,2 m) eignet sich ideal für kompakte Wohnlösungen oder als Gäste- und Büroeinheit. Trotz der kleineren Fläche ermöglicht der clevere Grundriss eine komfortable Nutzung mit offenen Wohnbereichen und funktionalen Schlafräumen.

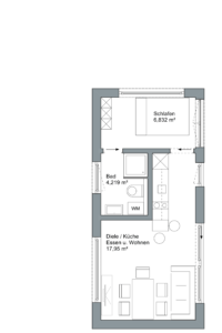
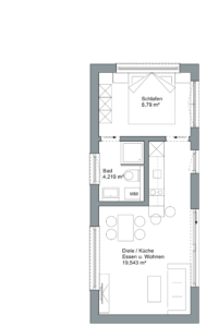
9m x 4,2m

Wohnfläche 29 qm² + Terrasse

Mit Größe M (9 × 4,2 m) wächst die Nutzfläche, wodurch ein großzügigeres Wohngefühl entsteht. Der erweiterte Grundriss bietet mehr Stauraum und Bewegungsfreiheit, ideal für Einzelpersonen oder Paare mit zusätzlichen Platzanforderungen.

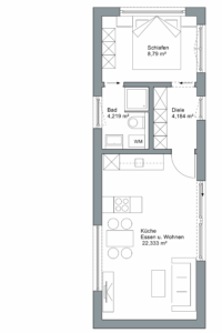
10m x 4,2m

Wohnfläche 32,55 qm² + Terrasse

Die Größe L (10 × 4,2 m) setzt auf ein ausgewogenes Verhältnis zwischen Wohnkomfort und Raumgestaltung. Ein größerer Wohn-, Ess- und Küchenbereich schafft ein offenes Ambiente, während zusätzliche Stauraumlösungen den Alltag erleichtern.

12m x 4,2m

Wohnfläche 39,52 qm² + Terrasse

Die größte Variante, Größe XL (12 × 4,2 m), bietet die umfangreichste Wohnfläche mit mehreren getrennten Räumen. Diese Version ist optimal Nutzer, die mehr Platz für Arbeiten, Gäste oder individuelle Gestaltungsmöglichkeiten benötigen.